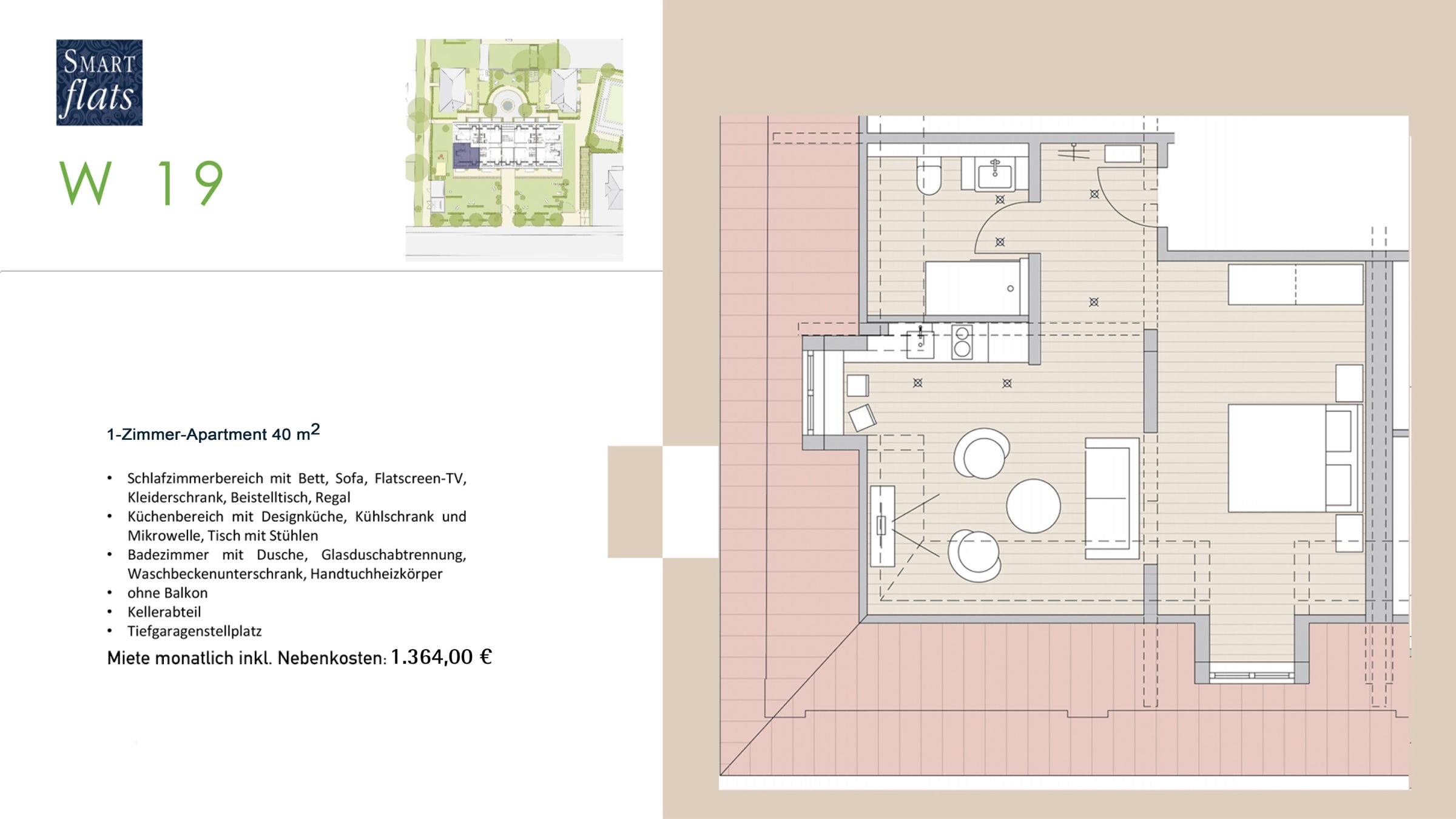
1 Zimmer Appartement
1 Zimmer Appartement